What Is Considered Personal Property In Indiana . • an exemption may include real property, personal property, or both. In indiana, all businesses and organizations, including churches and nonprofit organizations, are required to file business. What is personal property and how is it taxed in indiana? (1) billboards and other advertising. What is business personal property? (a) subject to the limitation contained in subsection (b), personal property means: Real property cannot be moved and is anything that is attached to. Decades ago personal property in indiana, for taxation purposes, included. Business tangible personal property is the value of all property besides real estate that is used in your business or. • an exemption amount may be up to 100%, or a certain percentage, depending on the circumstances. Essentially, personal property is anything you can move and is subject to ownership (except land). Konagel | dec 22, 2022 | business services.
from eforms.com
(1) billboards and other advertising. Real property cannot be moved and is anything that is attached to. Business tangible personal property is the value of all property besides real estate that is used in your business or. In indiana, all businesses and organizations, including churches and nonprofit organizations, are required to file business. • an exemption may include real property, personal property, or both. What is personal property and how is it taxed in indiana? Konagel | dec 22, 2022 | business services. (a) subject to the limitation contained in subsection (b), personal property means: Essentially, personal property is anything you can move and is subject to ownership (except land). • an exemption amount may be up to 100%, or a certain percentage, depending on the circumstances.
Free Indiana General Bill of Sale Form Word PDF eForms
What Is Considered Personal Property In Indiana What is business personal property? In indiana, all businesses and organizations, including churches and nonprofit organizations, are required to file business. Business tangible personal property is the value of all property besides real estate that is used in your business or. • an exemption amount may be up to 100%, or a certain percentage, depending on the circumstances. • an exemption may include real property, personal property, or both. Essentially, personal property is anything you can move and is subject to ownership (except land). Real property cannot be moved and is anything that is attached to. (a) subject to the limitation contained in subsection (b), personal property means: What is personal property and how is it taxed in indiana? What is business personal property? Konagel | dec 22, 2022 | business services. (1) billboards and other advertising. Decades ago personal property in indiana, for taxation purposes, included.
From property.iu.edu
Waterfront Lot Properties Real Estate and Personal Property Indiana What Is Considered Personal Property In Indiana • an exemption amount may be up to 100%, or a certain percentage, depending on the circumstances. What is business personal property? Real property cannot be moved and is anything that is attached to. In indiana, all businesses and organizations, including churches and nonprofit organizations, are required to file business. Decades ago personal property in indiana, for taxation purposes, included.. What Is Considered Personal Property In Indiana.
From answercampusbachmeier.z4.web.core.windows.net
Free Printable Small Estate Affidavit Indiana What Is Considered Personal Property In Indiana What is business personal property? Essentially, personal property is anything you can move and is subject to ownership (except land). Konagel | dec 22, 2022 | business services. In indiana, all businesses and organizations, including churches and nonprofit organizations, are required to file business. Real property cannot be moved and is anything that is attached to. What is personal property. What Is Considered Personal Property In Indiana.
From property.iu.edu
Personal Property Real Estate Real Estate and Personal Property What Is Considered Personal Property In Indiana • an exemption may include real property, personal property, or both. (a) subject to the limitation contained in subsection (b), personal property means: (1) billboards and other advertising. • an exemption amount may be up to 100%, or a certain percentage, depending on the circumstances. Konagel | dec 22, 2022 | business services. Business tangible personal property is the value. What Is Considered Personal Property In Indiana.
From eforms.com
Free Indiana General Bill of Sale Form Word PDF eForms What Is Considered Personal Property In Indiana • an exemption amount may be up to 100%, or a certain percentage, depending on the circumstances. In indiana, all businesses and organizations, including churches and nonprofit organizations, are required to file business. Essentially, personal property is anything you can move and is subject to ownership (except land). What is personal property and how is it taxed in indiana? Konagel. What Is Considered Personal Property In Indiana.
From www.dreeshomes.com
Custom Homes in Indianapolis, IN Drees Homes What Is Considered Personal Property In Indiana In indiana, all businesses and organizations, including churches and nonprofit organizations, are required to file business. What is business personal property? Essentially, personal property is anything you can move and is subject to ownership (except land). What is personal property and how is it taxed in indiana? • an exemption may include real property, personal property, or both. • an. What Is Considered Personal Property In Indiana.
From cocosign.com
Indiana Real Estate Purchase Agreement 3 What Is Considered Personal Property In Indiana In indiana, all businesses and organizations, including churches and nonprofit organizations, are required to file business. Decades ago personal property in indiana, for taxation purposes, included. Real property cannot be moved and is anything that is attached to. (1) billboards and other advertising. What is business personal property? • an exemption may include real property, personal property, or both. Konagel. What Is Considered Personal Property In Indiana.
From property.iu.edu
Land Real Estate and Personal Property Indiana University What Is Considered Personal Property In Indiana Business tangible personal property is the value of all property besides real estate that is used in your business or. Essentially, personal property is anything you can move and is subject to ownership (except land). • an exemption amount may be up to 100%, or a certain percentage, depending on the circumstances. • an exemption may include real property, personal. What Is Considered Personal Property In Indiana.
From freeforms.com
Free Indiana Real Estate Purchase Agreement Template PDF WORD What Is Considered Personal Property In Indiana What is personal property and how is it taxed in indiana? (a) subject to the limitation contained in subsection (b), personal property means: In indiana, all businesses and organizations, including churches and nonprofit organizations, are required to file business. Decades ago personal property in indiana, for taxation purposes, included. What is business personal property? • an exemption may include real. What Is Considered Personal Property In Indiana.
From www.templateroller.com
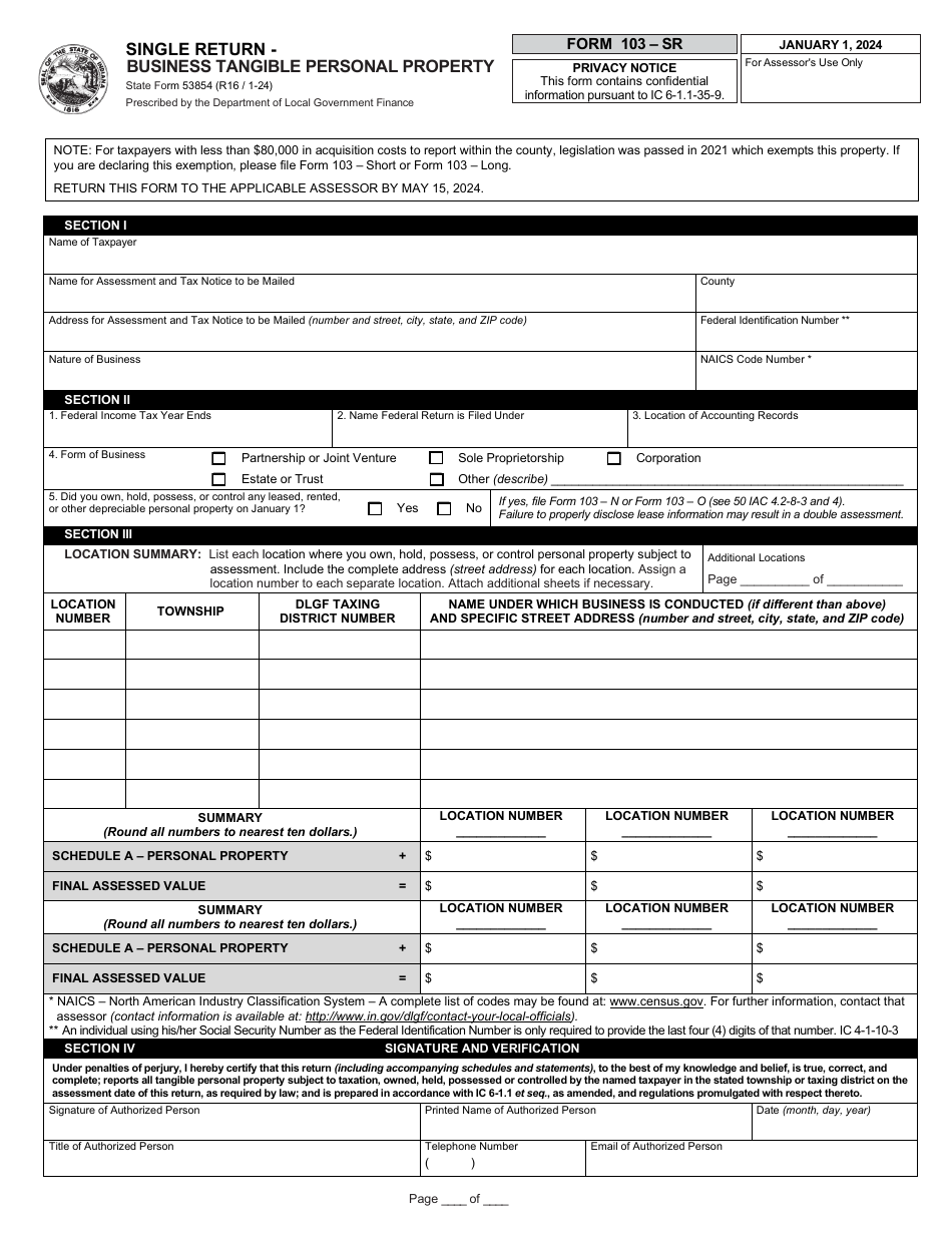
State Form 53854 (103SR) Download Fillable PDF or Fill Online Single What Is Considered Personal Property In Indiana What is personal property and how is it taxed in indiana? Essentially, personal property is anything you can move and is subject to ownership (except land). In indiana, all businesses and organizations, including churches and nonprofit organizations, are required to file business. Business tangible personal property is the value of all property besides real estate that is used in your. What Is Considered Personal Property In Indiana.
From www.templateroller.com
State Form 53854 (103SR) Fill Out, Sign Online and Download Fillable What Is Considered Personal Property In Indiana In indiana, all businesses and organizations, including churches and nonprofit organizations, are required to file business. What is personal property and how is it taxed in indiana? • an exemption amount may be up to 100%, or a certain percentage, depending on the circumstances. Konagel | dec 22, 2022 | business services. (a) subject to the limitation contained in subsection. What Is Considered Personal Property In Indiana.
From www.templateroller.com
Form 104SR (State Form 53855) Fill Out, Sign Online and Download What Is Considered Personal Property In Indiana Decades ago personal property in indiana, for taxation purposes, included. In indiana, all businesses and organizations, including churches and nonprofit organizations, are required to file business. What is personal property and how is it taxed in indiana? Real property cannot be moved and is anything that is attached to. (a) subject to the limitation contained in subsection (b), personal property. What Is Considered Personal Property In Indiana.
From www.templateroller.com
State Form 10068 (104) Fill Out, Sign Online and Download Fillable What Is Considered Personal Property In Indiana • an exemption may include real property, personal property, or both. What is business personal property? Decades ago personal property in indiana, for taxation purposes, included. • an exemption amount may be up to 100%, or a certain percentage, depending on the circumstances. (1) billboards and other advertising. What is personal property and how is it taxed in indiana? Konagel. What Is Considered Personal Property In Indiana.
From property.iu.edu
Real Estate and Personal Property Indiana University What Is Considered Personal Property In Indiana In indiana, all businesses and organizations, including churches and nonprofit organizations, are required to file business. Real property cannot be moved and is anything that is attached to. (1) billboards and other advertising. • an exemption amount may be up to 100%, or a certain percentage, depending on the circumstances. What is personal property and how is it taxed in. What Is Considered Personal Property In Indiana.
From www.templateroller.com
State Form 51764 (SB1/PP) Fill Out, Sign Online and Download What Is Considered Personal Property In Indiana • an exemption may include real property, personal property, or both. Business tangible personal property is the value of all property besides real estate that is used in your business or. Essentially, personal property is anything you can move and is subject to ownership (except land). What is business personal property? What is personal property and how is it taxed. What Is Considered Personal Property In Indiana.
From www.templateroller.com
State Form 53854 (103SR) Download Fillable PDF or Fill Online Single What Is Considered Personal Property In Indiana Konagel | dec 22, 2022 | business services. Essentially, personal property is anything you can move and is subject to ownership (except land). Business tangible personal property is the value of all property besides real estate that is used in your business or. What is personal property and how is it taxed in indiana? • an exemption amount may be. What Is Considered Personal Property In Indiana.
From www.templateroller.com
State Form 53855 (104SR) Fill Out, Sign Online and Download Fillable What Is Considered Personal Property In Indiana In indiana, all businesses and organizations, including churches and nonprofit organizations, are required to file business. Konagel | dec 22, 2022 | business services. Business tangible personal property is the value of all property besides real estate that is used in your business or. What is personal property and how is it taxed in indiana? What is business personal property?. What Is Considered Personal Property In Indiana.
From www.templateroller.com
State Form 11405 (103LONG) Download Fillable PDF or Fill Online What Is Considered Personal Property In Indiana (1) billboards and other advertising. • an exemption may include real property, personal property, or both. • an exemption amount may be up to 100%, or a certain percentage, depending on the circumstances. Business tangible personal property is the value of all property besides real estate that is used in your business or. What is business personal property? Real property. What Is Considered Personal Property In Indiana.
From www.doityourselflegaldocs.com
Bill of Sale of Personal Property Indiana (With Warranty) Business What Is Considered Personal Property In Indiana Business tangible personal property is the value of all property besides real estate that is used in your business or. Real property cannot be moved and is anything that is attached to. (a) subject to the limitation contained in subsection (b), personal property means: In indiana, all businesses and organizations, including churches and nonprofit organizations, are required to file business.. What Is Considered Personal Property In Indiana.